Martigny

SIM22 : Surface commerciale au plein de coeur de Martigny

SIM22 : Surface commerciale au plein de coeur de Martigny image
SIM22 : Surface commerciale au plein de coeur de Martigny image
SIM22 : Surface commerciale au plein de coeur de Martigny image
SIM22 : Surface commerciale au plein de coeur de Martigny image
SIM22 : Surface commerciale au plein de coeur de Martigny image
SIM22 : Surface commerciale au plein de coeur de Martigny image

DESCRIPTION

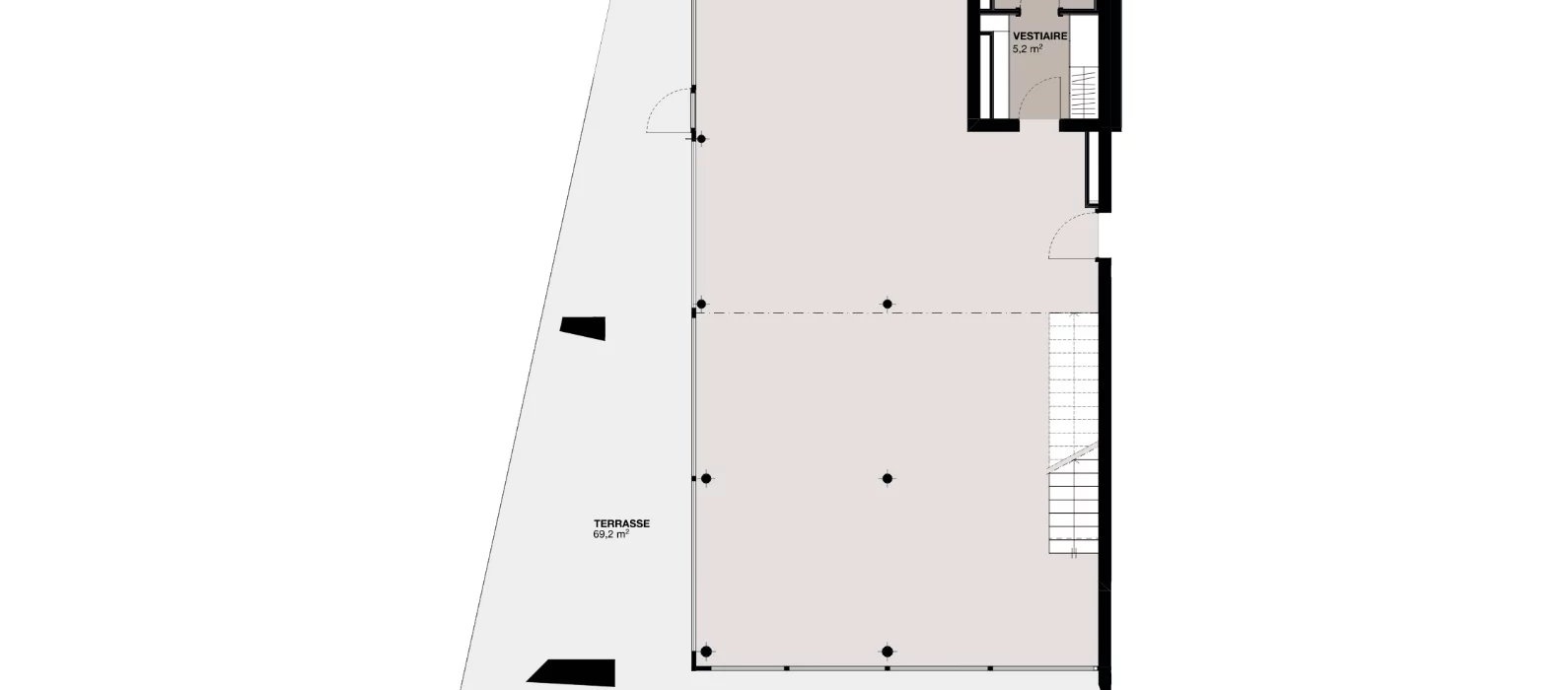
LOT 001 - Surface commerciale de plus de 160m2 sise au rez dans un bâtiment ultra moderne au coeur de la ville de Martigny, à 450 mètres de la gare et de toutes ses commodités.

1 cave comprise dans le prix au rez-de-chaussée

1-2 places de parking disponibles en sus, selon la volonté de l'acquéreur.

Travaux commencés et remise des clefs prévue pour l'été 2025

INFORMATIONS SUPPLÉMENTAIRES

Référence 85324377
Type Commercial
Surface totale 161.8m²
Surface Habitable 161.8
Lieu Martigny
Ascenseur OUI

VOTRE AGENT

Noa POLLI image

Noa POLLI

Directeur d'agence
Contactez-nous

CONTACTEZ L'AGENT

Merci pour votre message !

Merci de nous avoir contactés ! Nous vous répondrons dans les plus brefs délais.

Erreur !

Une erreur est survenue lors de l'envoi de votre message. Veuillez réessayer plus tard.